11319 N Holly Street, Kansas City, MO 64155

     
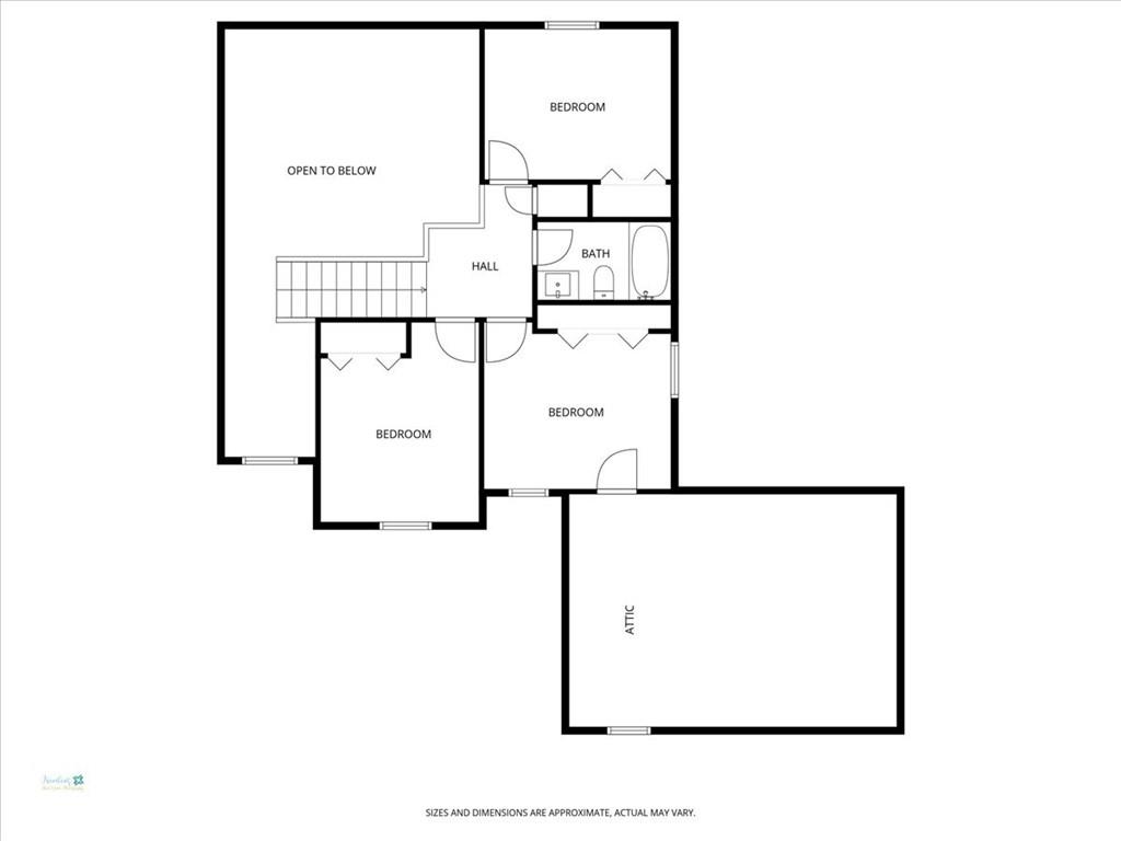
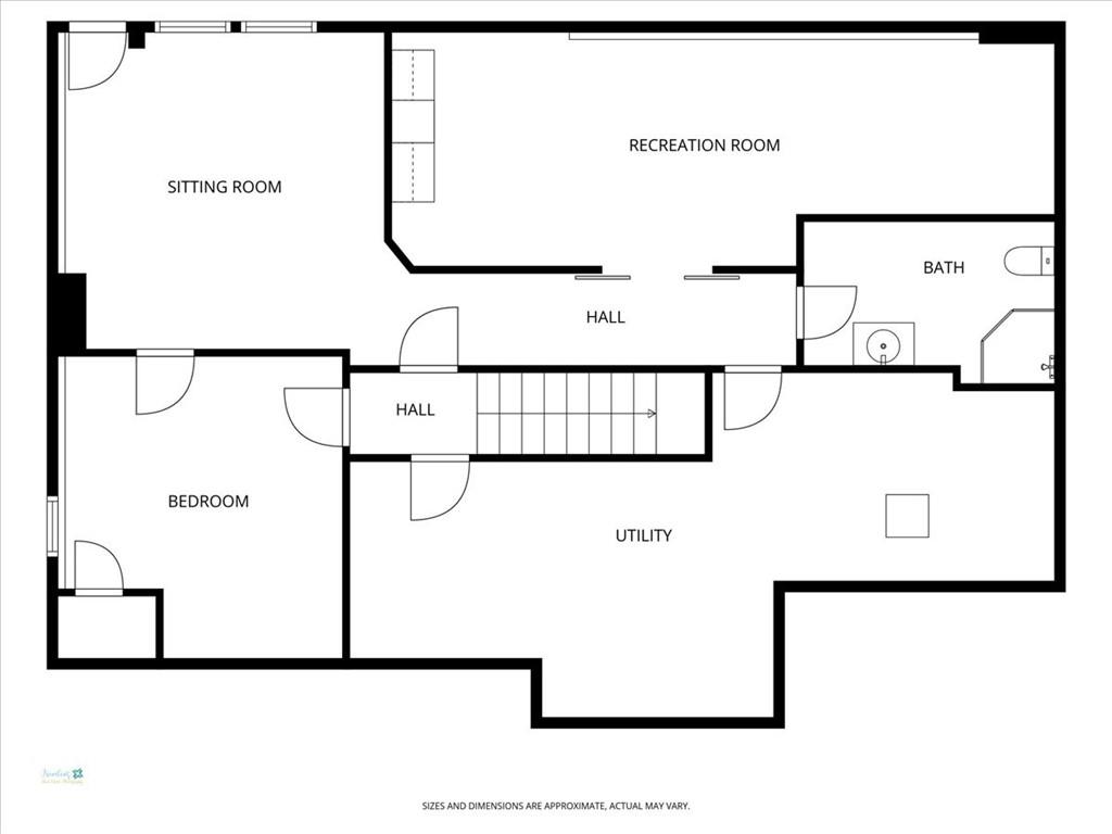
  • 5Beds
  •   
  • 3 Baths
  •  
  • 1½ Bath
  •  
  • 3,404Sq Ft
Mortgage Calculator

$465,000
 est. $2,246/mo

This remarkable home features so many extras, including a media theater room, home office (or non conforming 5th bedroom) with waiting room and private entrance, new kitchen countertops, tons of storage, newer deck, outdoor shed and so much more. Nestled in a cul de sac with a large lot and lots of room, this home has all of the space you will want with the benefit of a cul de sac lot and great highway access! Measurements are approximate and need to be confirmed by buyer.

Directions
I 435 to Cookingham, go West to N Jefferson, go left to N Holly, go right to home straight ahead in cul de sac.
Subdivision
Bristol Manor
City
Kansas City
County
Clay
Property Type
Residential / Single Family Residence
Listing Updated
Mar 21, 2026 at 1:03pm
MLS Number
2608235
Property Tax
$6,000
Home Owners Association
Yes
Disclaimer
The information displayed on this page is confidential, proprietary, and copyrighted information of Heartland Multiple Listing Service, Inc. (“Heartland MLS”). Copyright 2026, Heartland Multiple Listing Service, Inc. Heartland MLS, Elite Realty and Agent Jo do not make any warranty or representation concerning the timeliness or accuracy of the information displayed herein. In consideration for the receipt of the information on this page, the recipient agrees to use the information solely for the private non-commercial purpose of identifying a property in which the recipient has a good faith interest in acquiring.
The data relating to real estate displayed on this website comes in part from the Heartland Multiple Listing Service database compilation. The properties displayed on this website may not be all of the properties in the Heartland MLS database compilation, or all of the properties listed with other brokers participating in the Heartland MLS IDX program. Detailed information about the properties displayed on this website includes the name of the listing company.
Information is deemed reliable but is not guaranteed.

Copyright © 2026 ELITE Realty.