4300 E 75th Terrace, Kansas City, MO 64132

Mortgage Calculator

$11
 est. $842/mo

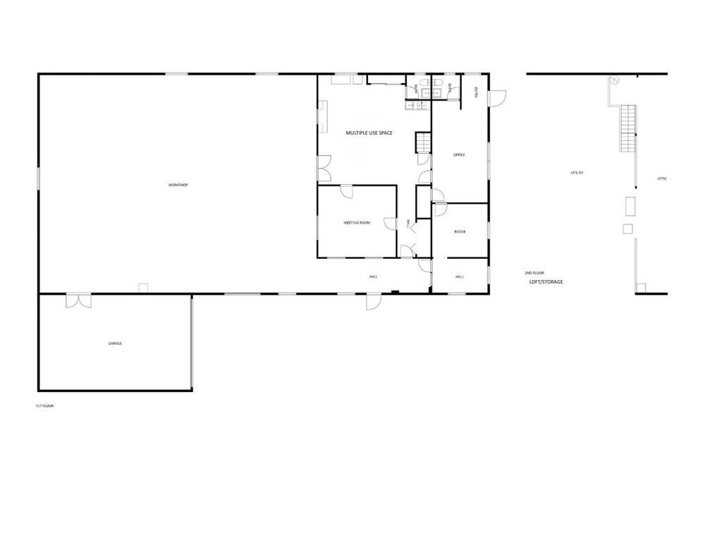
Prime Industrial Space for Lease – Up to 6,000 Sq Ft | $11.00/SF Gross Lease Excellent opportunity to lease a versatile industrial building offering up to 6,000 square feet of flexible space. The floor plan can be divided to fit tenant needs, making this an ideal option for light industrial, workshop, service business, storage, or distribution use. The current owner will remain in the building and is willing to divide and configure the space based on the needs of additional occupants. The property includes approximately 1,850 square feet of finished office space featuring three private offices, a conference room, kitchen/break area, and two restrooms, providing a functional setup for administrative or client-facing operations. The office area is equipped with air conditioning, while the warehouse space is fully heated for year-round use. The warehouse offers 14-foot ceilings, three dock doors, and one drive-in door, allowing for efficient loading, equipment access, and workflow. The building is powered by 3-phase 230V / 600-amp service and includes additional mezzanine/loft space ideal for storage or extra workspace. Zoned M2-B, this property is well suited for contractors, light manufacturing, automotive, trade services, warehouse users, or small industrial businesses. Additional features include: Up to 6,000 SF available (divisible) Gross lease rate: $11.00 per square foot 8 on-site parking spaces Heated warehouse / AC office Easy access to major highways and central Kansas City corridors This is a rare opportunity to lease a functional, well-equipped industrial space in a convenient location with flexible layout options.

Directions
From Lee’s Summit, take I-470 West / US-50 West toward Kansas City, then merge onto I-435 North. Continue on I-435 and take US-71 / Bruce R. Watkins Drive North, then exit at 75th Street and head east on E 75th Street. Continue east and turn north toward E 75th Terrace where you will arrive at 4310 E. 75th Terrace, Kansas City, MO 64132. Property offers convenient access to major highways and central Kansas City corridors.
City
Kansas City
County
Jackson
Property Type
Commercial Lease / Industrial
Listing Updated
Mar 17, 2026 at 11:03am
MLS Number
2607575
Property Tax
$10,092
Zoning
$M2-B
Disclaimer
The information displayed on this page is confidential, proprietary, and copyrighted information of Heartland Multiple Listing Service, Inc. (“Heartland MLS”). Copyright 2026, Heartland Multiple Listing Service, Inc. Heartland MLS, Elite Realty and Agent Jo do not make any warranty or representation concerning the timeliness or accuracy of the information displayed herein. In consideration for the receipt of the information on this page, the recipient agrees to use the information solely for the private non-commercial purpose of identifying a property in which the recipient has a good faith interest in acquiring.
The data relating to real estate displayed on this website comes in part from the Heartland Multiple Listing Service database compilation. The properties displayed on this website may not be all of the properties in the Heartland MLS database compilation, or all of the properties listed with other brokers participating in the Heartland MLS IDX program. Detailed information about the properties displayed on this website includes the name of the listing company.
Information is deemed reliable but is not guaranteed.

Copyright © 2026 ELITE Realty.