7238 Richards Drive, Shawnee, KS 66216

     
  • 4Beds
  •   
  • 3 Baths
  •  
  • 0½ Baths
  •  
  • 2,853Sq Ft
Mortgage Calculator

$698,170
 est. $3,391/mo

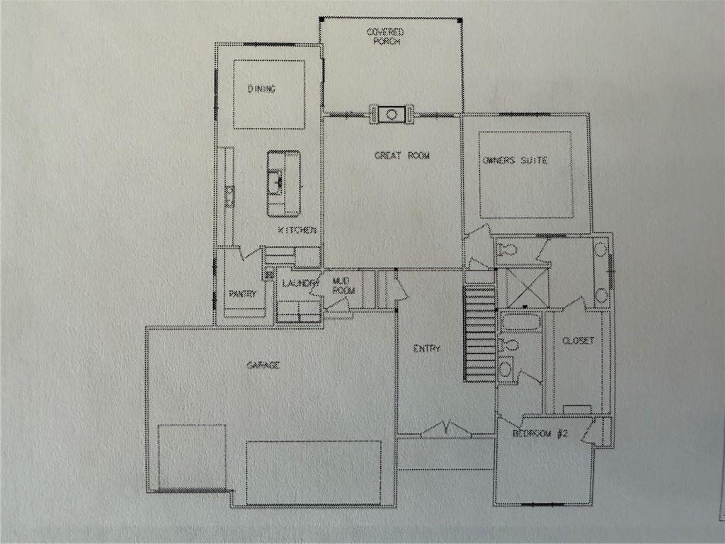
Hoelting's reverse plan the Sante Fe EX builds on the success of the Sante Fe with some added square footage where it made the most sense. This right sized home features very nice room sizes on the main level and the lower level. You will appreciate the high ceilings, the foyer greets you with nearly 14' of hieght and the Great Room has 11'. The Great Room features a see thru fireplace to the covered patio. The kitchen offers plenty of countertops and cabinetry and also leads to an over sized pantry. The Primary Suite offers a good size Bedroom, a double vanity, a very spacious shower and a huge extra tall closet with room for pull down storage. In the lower level you will find a very large rec room with a back bar provided. In addition to the two lower level bedrooms and a bathroom, you will find plenty of storage space. We think you will agree it is a great home. The home is still under construction, so please be careful while entering the property.

Directions
In Shawnee, between Quivira and Pflumm on 71st street, you will turn south onto Richards Drive and follow it down to the home on your right side.
Subdivision
Kenneth Estates
City
Shawnee
County
Johnson, KS
Property Type
Residential / Single Family Residence
Listing Updated
Mar 03, 2026 at 12:03pm
MLS Number
2604476
Property Tax
$9,231
Home Owners Association
Yes - Kenneth Estates HOA
Disclaimer
The information displayed on this page is confidential, proprietary, and copyrighted information of Heartland Multiple Listing Service, Inc. (“Heartland MLS”). Copyright 2026, Heartland Multiple Listing Service, Inc. Heartland MLS, Elite Realty and Agent Jo do not make any warranty or representation concerning the timeliness or accuracy of the information displayed herein. In consideration for the receipt of the information on this page, the recipient agrees to use the information solely for the private non-commercial purpose of identifying a property in which the recipient has a good faith interest in acquiring.
The data relating to real estate displayed on this website comes in part from the Heartland Multiple Listing Service database compilation. The properties displayed on this website may not be all of the properties in the Heartland MLS database compilation, or all of the properties listed with other brokers participating in the Heartland MLS IDX program. Detailed information about the properties displayed on this website includes the name of the listing company.
Information is deemed reliable but is not guaranteed.

Copyright © 2026 ELITE Realty.