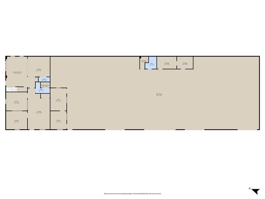
2-BUILDING 12,000 SF INDUSTRIAL COMPLEX NEAR KANSAS SPEEDWAY AND PROPOSED CHIEFS STADIUM! This I-1 zoned property includes two insulated buildings—an 8,000 sq ft main building with 3-phase power and dual entry points for truck deliveries, plus a 4,000 sq ft secondary building—offering excellent flexibility for industrial, shop, or warehouse use. The larger building features approximately 1,500 sq ft of office space with two bathrooms (one in the office and one in the shop), and part of the office area already functions like an apartment option with a full kitchen and an upstairs full bath. A new roof was installed on the main building in 2020. Property is currently leased. Located in a small town with quick access to 7 Highway, K-10, and I-70, this site sits just 4–5 miles from Kansas Speedway and the proposed Chiefs stadium.
Copyright © 2026 ELITE Realty.