8605 Everett Street, Raytown, MO 64138

     
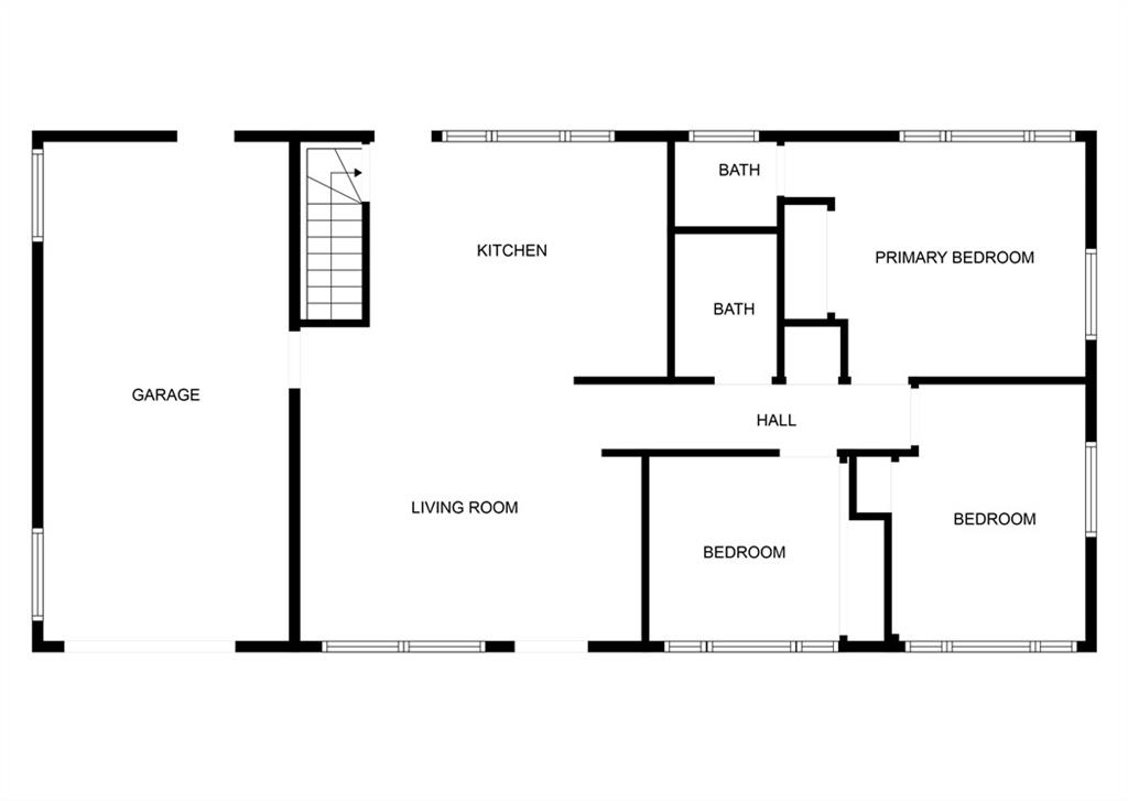
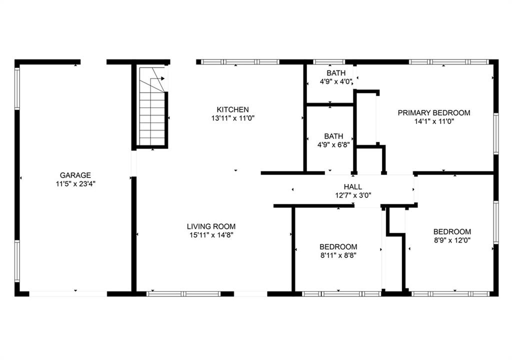
  • 3Beds
  •   
  • 2 Baths
  •  
  • 1½ Bath
  •  
  • 1,560Sq Ft
Mortgage Calculator

$260,000
 est. $1,122/mo

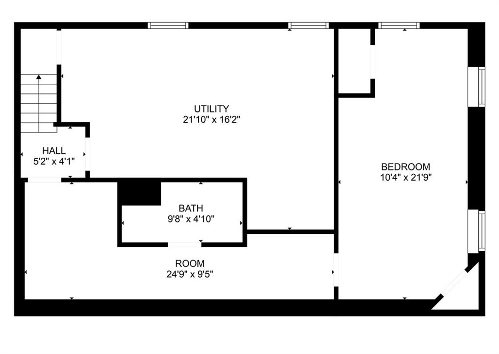
This one is ready to go!!! Step into this beautifully renovated home that blends timeless charm with stylish modern upgrades. This open-concept 3-bedroom, 2.5-bathroom residence offers comfortable living across a spacious layout, thoughtfully updated with today’s buyer in mind. The all-new kitchen is the centerpiece of the home, featuring sleek stainless-steel appliances, brand-new cabinetry, and stylish countertops — perfect for both cooking and entertaining. Throughout the main level, you’ll find refinished original dark hardwood floors that complement the fresh, modern design, alongside new tile and luxury vinyl plank flooring in the finished basement. The main level offers three generously sized bedrooms and 1.5 updated baths. Downstairs, enjoy the flexibility of a finished lower level with a full, completely new bathroom and a non-conforming fourth bedroom — ideal for a guest suite, home office, or gym. Additional highlights include a new roof, new exterior doors, and a one-car garage. The home sits on a picturesque, treed lot, offering great outdoor potential. Fashionable lighting and design elements throughout bring a fun and contemporary feel to every room. Don’t miss the opportunity to own this move-in-ready home in a convenient Raytown location!

Directions
From Blue Ridge Blvd Turn north onto James A Reed Rd 0.4 mi Turn left onto E 85 St/E 85th St 0.3 mi Turn right onto Everett St Destination will be on the left
Subdivision
Westridge
City
Raytown
County
Jackson
Property Type
Residential / Single Family Residence
Listing Updated
Feb 24, 2026 at 2:02pm
MLS Number
2601895
Property Tax
$1,746
Home Owners Association
No
Disclaimer
The information displayed on this page is confidential, proprietary, and copyrighted information of Heartland Multiple Listing Service, Inc. (“Heartland MLS”). Copyright 2026, Heartland Multiple Listing Service, Inc. Heartland MLS, Elite Realty and Agent Jo do not make any warranty or representation concerning the timeliness or accuracy of the information displayed herein. In consideration for the receipt of the information on this page, the recipient agrees to use the information solely for the private non-commercial purpose of identifying a property in which the recipient has a good faith interest in acquiring.
The data relating to real estate displayed on this website comes in part from the Heartland Multiple Listing Service database compilation. The properties displayed on this website may not be all of the properties in the Heartland MLS database compilation, or all of the properties listed with other brokers participating in the Heartland MLS IDX program. Detailed information about the properties displayed on this website includes the name of the listing company.
Information is deemed reliable but is not guaranteed.

Copyright © 2026 ELITE Realty.