2644 W Centre Street, Olathe, KS 66061

     
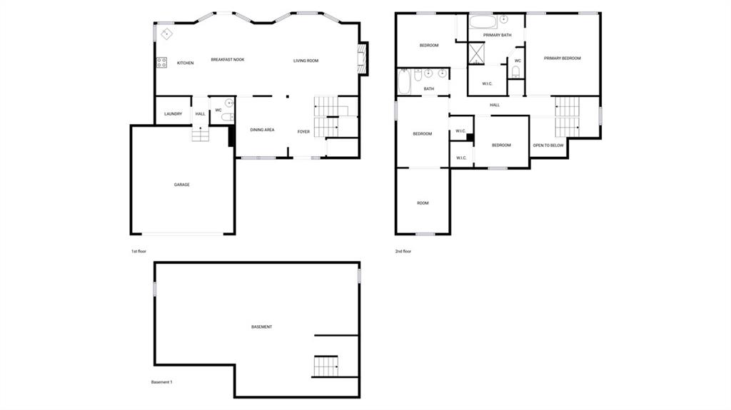
  • 4Beds
  •   
  • 2 Baths
  •  
  • 1½ Bath
  •  
  • 1,960Sq Ft
Mortgage Calculator

$450,000
 est. $2,096/mo

Discover the charm of 2644 W Centre St, boasting fresh interior paint that gives a clean and modern feel. The living room is cozy with a fireplace, perfect for those chilly evenings. The kitchen is a chef's dream, equipped with all stainless steel appliances and an accent backsplash that adds a touch of elegance. The primary bedroom features a walk-in closet, providing ample storage space. The primary bathroom is a sanctuary with double sinks, a separate tub, and shower for ultimate relaxation. Outdoor living is a breeze with a patio, for shade, and a fenced-in backyard for privacy. Experience the comfort and convenience of this beautiful home. Included 100-Day Home Warranty with buyer activation

Directions
Head west on W 135th St/W Santa Fe St toward N Normandy St Turn right onto N Overlook St Turn right onto W Centre St
Subdivision
Bridlewood Downs
City
Olathe
County
Johnson, KS
Property Type
Residential / Single Family Residence
Listing Updated
Mar 01, 2026 at 7:03pm
MLS Number
2601716
Property Tax
$4,874
Home Owners Association
Yes - Bridlewood downs homes association
Disclaimer
The information displayed on this page is confidential, proprietary, and copyrighted information of Heartland Multiple Listing Service, Inc. (“Heartland MLS”). Copyright 2026, Heartland Multiple Listing Service, Inc. Heartland MLS, Elite Realty and Agent Jo do not make any warranty or representation concerning the timeliness or accuracy of the information displayed herein. In consideration for the receipt of the information on this page, the recipient agrees to use the information solely for the private non-commercial purpose of identifying a property in which the recipient has a good faith interest in acquiring.
The data relating to real estate displayed on this website comes in part from the Heartland Multiple Listing Service database compilation. The properties displayed on this website may not be all of the properties in the Heartland MLS database compilation, or all of the properties listed with other brokers participating in the Heartland MLS IDX program. Detailed information about the properties displayed on this website includes the name of the listing company.
Information is deemed reliable but is not guaranteed.

Copyright © 2026 ELITE Realty.