11605 E 78TH Street, Raytown, MO 64138

     
  • 3Beds
  •   
  • 1 Bath
  •  
  • 1½ Bath
  •  
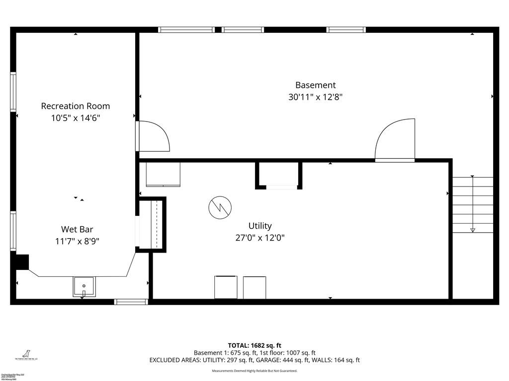
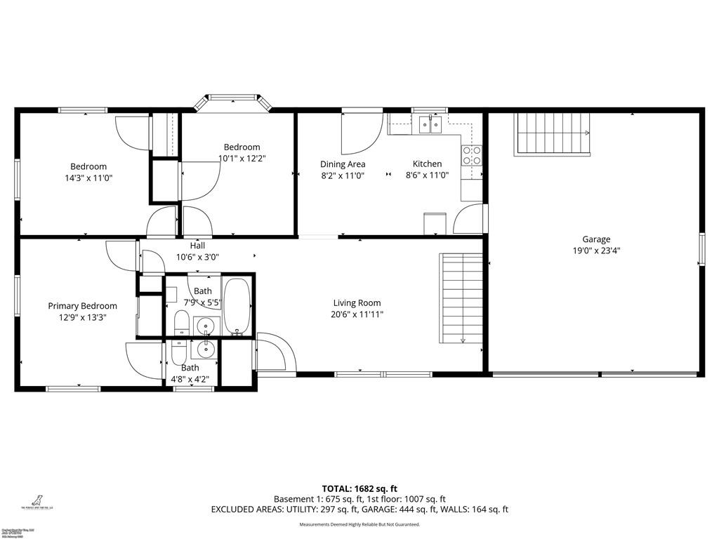
  • 1,682Sq Ft
Mortgage Calculator

$185,000
 est. $887/mo

This well-maintained Raytown home has been lovingly cared for by the same owner for over 30 years and is ready for its next chapter. Featuring 3 bedrooms, 1½ baths, and a 2-car garage, the layout offers comfortable living with additional space to spread out in the partially finished rec room and non-conforming bedroom in the basement. The home sits on a spacious fenced corner lot and includes a large covered patio just off the kitchen—perfect for outdoor dining, relaxing evenings, or entertaining guests. BACK ON THE MARKET - NO FAULT OF THE SELLER. While the property would benefit from cosmetic updates, the major structural components have been addressed. Professional foundation work was completed in 2021 and is re-inspected annually to ensure continued stability. Any visible sheetrock cracks predate the 2021 foundation repairs and were not cosmetically updated following the structural work A solid home with great potential—bring your vision and make it your own!

Directions
Woodson Road to 78th Street. Home is on the SE Corner
Subdivision
Woodvue
City
Raytown
County
Jackson
Property Type
Residential / Single Family Residence
Listing Updated
Mar 02, 2026 at 5:03pm
MLS Number
2601677
Property Tax
$2,300
Home Owners Association
No
Disclaimer
The information displayed on this page is confidential, proprietary, and copyrighted information of Heartland Multiple Listing Service, Inc. (“Heartland MLS”). Copyright 2026, Heartland Multiple Listing Service, Inc. Heartland MLS, Elite Realty and Agent Jo do not make any warranty or representation concerning the timeliness or accuracy of the information displayed herein. In consideration for the receipt of the information on this page, the recipient agrees to use the information solely for the private non-commercial purpose of identifying a property in which the recipient has a good faith interest in acquiring.
The data relating to real estate displayed on this website comes in part from the Heartland Multiple Listing Service database compilation. The properties displayed on this website may not be all of the properties in the Heartland MLS database compilation, or all of the properties listed with other brokers participating in the Heartland MLS IDX program. Detailed information about the properties displayed on this website includes the name of the listing company.
Information is deemed reliable but is not guaranteed.

Copyright © 2026 ELITE Realty.