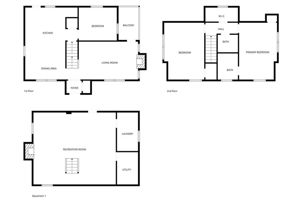
Listed below appraised value, this is an opportunity you do not want to miss. Located just minutes from the Waldo shops, restaurants, and local favorites, this charming home sits in a quiet, established neighborhood full of character. The freshly remodeled eat in kitchen features a stunning 10 foot island with seating, creating the perfect space for gathering, hosting, or everyday living. New flooring runs throughout the home, giving it a fresh and cohesive feel, while oversized rooms provide flexibility and comfort. The layout offers two bedrooms upstairs, including the primary suite with a private bathroom and gorgeous shower, plus an extra large secondary bedroom and convenient hall storage. An additional bedroom on the main floor can easily double as a home office or guest space, with a hall bath located at the top of the stairs for added functionality. Step outside to enjoy a peaceful covered lanai along with a large deck ideal for entertaining. The fenced yard offers room to relax or play, and a storage shed adds extra convenience. With space, updates, and a prime location near everything Waldo has to offer, this home delivers exceptional value and everyday livability.
Copyright © 2026 ELITE Realty.