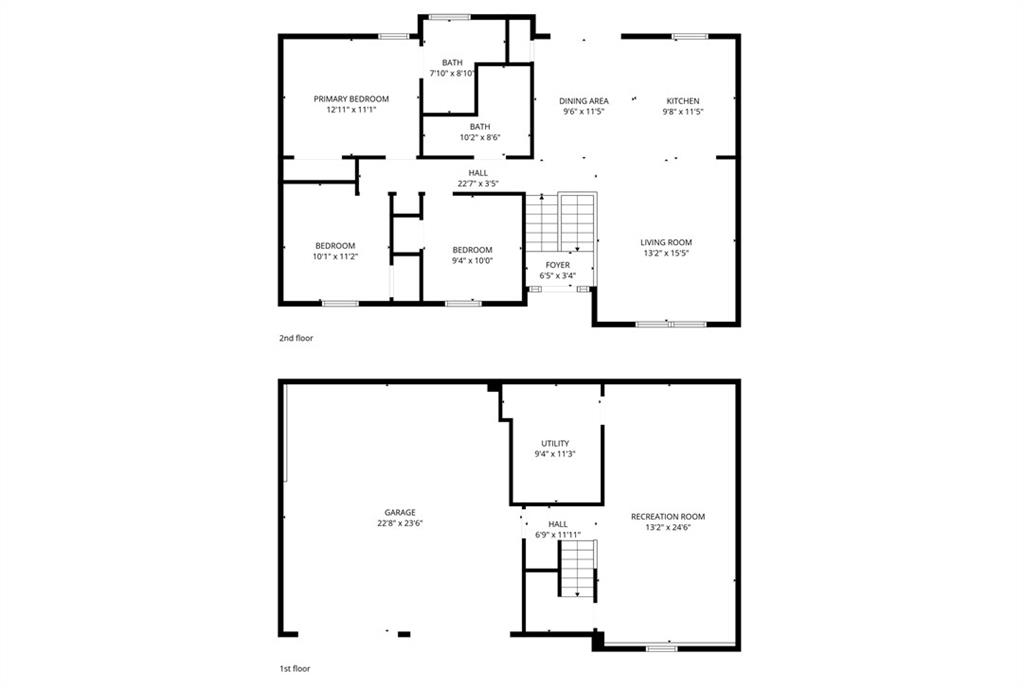
2228 Chanticleer Street, Excelsior Springs, MO 64024

     
  • 3Beds
  •   
  • 2 Baths
  •  
  • 0½ Baths
  •  
  • 1,576Sq Ft
Mortgage Calculator

$330,000
 est. $1,488/mo

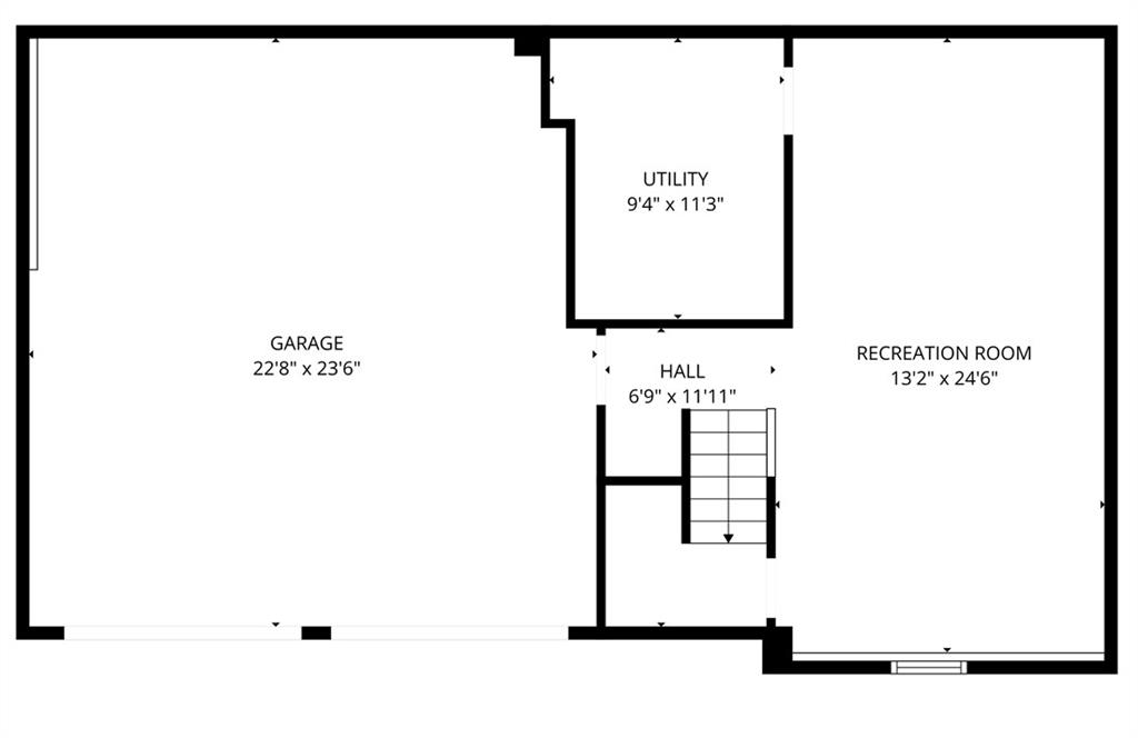
CHARMING open concept home in the heart of Excelsior Springs! Home is less than 5 years old. Whole home Reverse Osmosis water system is installed and included with the sale of the property. BRAND NEW finished basement with the option to add a full basement bathroom (already plumbed). We are USDA friendly and happy to assist Veteran's loans as well! Home is located at the south end of Excelsior Springs with shops and restaurants within walking distance. Easy highway access for work and travel!

Directions
Driving on US 69 Hwy north from Mosby take the second left at the stoplight on McCleary right across from Walmart. McCleary turns into Old Quarry Rd. at Kearney Rd. Continue straight on Old Quarry Rd. Turn left on Madison Ave. and another immediate left on Redmond St. Take a right on Chanticleer to house on right side almost to the end of the street.
Subdivision
Madison Park
City
Excelsior Springs
County
Clay
Property Type
Residential / Single Family Residence
Listing Updated
Feb 25, 2026 at 9:02am
MLS Number
2595026
Property Tax
$2,985
Home Owners Association
No
Disclaimer
The information displayed on this page is confidential, proprietary, and copyrighted information of Heartland Multiple Listing Service, Inc. (“Heartland MLS”). Copyright 2026, Heartland Multiple Listing Service, Inc. Heartland MLS, Elite Realty and Agent Jo do not make any warranty or representation concerning the timeliness or accuracy of the information displayed herein. In consideration for the receipt of the information on this page, the recipient agrees to use the information solely for the private non-commercial purpose of identifying a property in which the recipient has a good faith interest in acquiring.
The data relating to real estate displayed on this website comes in part from the Heartland Multiple Listing Service database compilation. The properties displayed on this website may not be all of the properties in the Heartland MLS database compilation, or all of the properties listed with other brokers participating in the Heartland MLS IDX program. Detailed information about the properties displayed on this website includes the name of the listing company.
Information is deemed reliable but is not guaranteed.

Copyright © 2026 ELITE Realty.