19439 254th Street, Tonganoxie, KS 66086

     
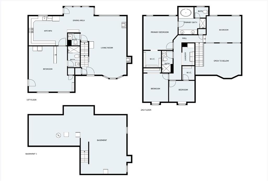
  • 5Beds
  •   
  • 3 Baths
  •  
  • 1½ Bath
  •  
  • 2,334Sq Ft
Mortgage Calculator

$439,000
 est. $2,122/mo

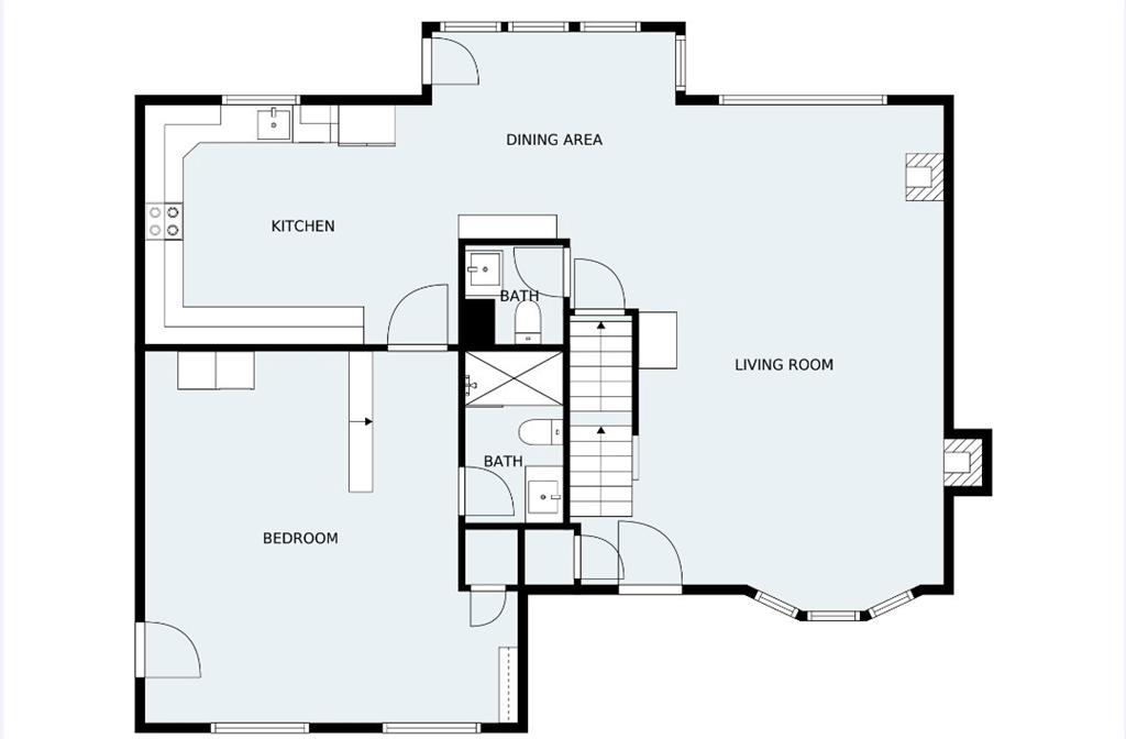
Come check out this Remodeled Acreage property!! Seller has done SOOO many upgrades a few to mention, Complete Kitchen remodel, All bathrooms have been upgraded, flooring, and much more to mention. The home Features 2 Primary Bedrooms, One Main Level with its own private bath and One upstairs also with its own Private bath. Garage was converted by previous owner and it should be possible to convert back if someone wanted. 3 MORE bedrooms that are MASSIVE!! Family room is a huge space that includes 2 seating areas and a wood burning stove to save on your heat bills! Adorable Loft area for bonus space that looks over living room. Kitchen is AMAZING and VERY Large. Granite counters, new appliances and New cabinets. Have animals??? You are in luck!! 30x50 Outbuilding. Property is fenced for Horse fans also!! Acreage features Many fruit trees. This being a rural property it still so CLOSE to Shopping and restaurant options. Also if you like to fish the lake is not far away!!

Directions
From Tonganoxie, head West on 16 Hwy, W on Leavenworth Rd, South on 251st St. West on Parallel Rd, South on 254th St to property.
Subdivision
None
City
Tonganoxie
County
Leavenworth
Property Type
Residential / Single Family Residence
Listing Updated
Feb 25, 2026 at 8:02am
MLS Number
2592643
Property Tax
$5,682
Home Owners Association
No
Disclaimer
The information displayed on this page is confidential, proprietary, and copyrighted information of Heartland Multiple Listing Service, Inc. (“Heartland MLS”). Copyright 2026, Heartland Multiple Listing Service, Inc. Heartland MLS, Elite Realty and Agent Jo do not make any warranty or representation concerning the timeliness or accuracy of the information displayed herein. In consideration for the receipt of the information on this page, the recipient agrees to use the information solely for the private non-commercial purpose of identifying a property in which the recipient has a good faith interest in acquiring.
The data relating to real estate displayed on this website comes in part from the Heartland Multiple Listing Service database compilation. The properties displayed on this website may not be all of the properties in the Heartland MLS database compilation, or all of the properties listed with other brokers participating in the Heartland MLS IDX program. Detailed information about the properties displayed on this website includes the name of the listing company.
Information is deemed reliable but is not guaranteed.

Copyright © 2026 ELITE Realty.