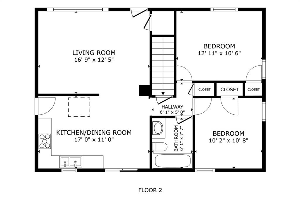
BEING SOLD AS-IS - Immediate foundation work needed. Bids and structural report available for review and price reflects average of bids plus extra for cosmetic repairs. A steal in Waldo for an updated 3 bedroom -- even with foundation/basement work needed. This 3 bed, 2 bath home (one bedroom is in the basement and has egress window) was remodeled just 5 years ago with refinished hardwood floors, updated kitchen with white cabinets, granite counters, and stainless appliances. Windows in the basement and main level were installed 5 years ago. Gutter/downspout replacement: 2023, Privacy fence/deck: 2022, New water heater: 2022. The home features a screened-in porch, deck, and huge backyard. Single-car garage. Fantastic Waldo location! Please review photos and virtual walkthrough prior to scheduling a tour!
Copyright © 2026 ELITE Realty.