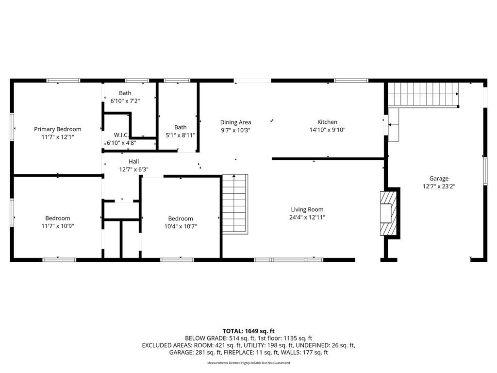
Don’t miss this 3 bed, 2 bath ranch nestled in a quiet and established neighborhood in Excelsior Springs! This home features NEW roof and gutters (2024), stainless steel appliances, whole house humidifier, and ample storage throughout. Updates in the last 7 years include new windows, garage door, stove, and dishwasher. You’ll feel at home when you step into the cozy living room with the wood-burning fireplace. The main level hosts all three bedrooms and two full bathrooms along with a spacious kitchen. You’ll find plenty of space in the finished basement including gorgeous built-ins, recessed lighting, and a versatile nook-- perfect for a 4th non-conforming bedroom or office! In addition to a laundry area, there’s also a large storage room in the basement with shelving. Enjoy spending time outside on the patio in the already fenced-in backyard with a storage shed! There’s even raised beds ready for the aspiring gardener. Conveniently located right off 69 highway and just 5 minutes to the heart of downtown Excelsior Springs! This is a great opportunity for sweat equity! Home is being sold “as-is.”
Copyright © 2025 ELITE Realty.