16996 S Cheshire Street, Olathe, KS 66062

     
  • 4Beds
  •   
  • 3 Baths
  •  
  • 0½ Baths
  •  
  • 2,571Sq Ft
Mortgage Calculator

$599,430
 est. $2,936/mo

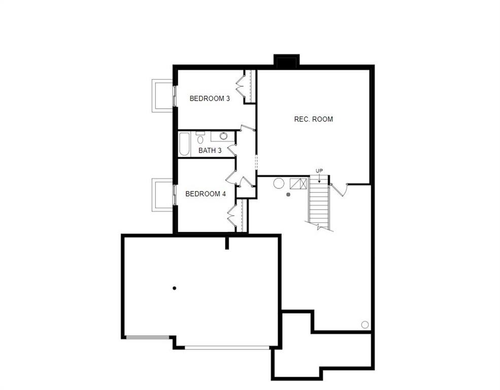
Brand-new 2,629 sq ft4 bedroom 3 bathroom home in Stonebridge Villas with main-level living and extensive community amenities. The main floor includes the primary bedroom plus a second bedroom or office. The finished lower level adds two more bedrooms, a full bath, and a large recreation room. HOA provides lawn care and snow removal. Community features include paved walking trails, four pools, two clubhouses (one with workout facilities), playgrounds, and open green space. Approx. 1 mi to Heritage Park, 2 mi to Price Chopper, and about 5 mi to Olathe Medical Center (now KU Med). Stonebridge Clubhouse & Pools within community. I-35 access 3 mi. 169 hwy 2 mi. Bluehawk Shopping 5 mi and Arbor Creek Shopping 2 mi.

Directions
South on Murlen Rd to W 169th Place. Go East to S Cheshire St. Go South. Home is on the right side of the road.
Subdivision
Stonebridge Villas
City
Olathe
County
Johnson, KS
Property Type
Residential / Villa
Listing Updated
Jan 29, 2026 at 4:01am
MLS Number
2588826
Property Tax
$8,227
Home Owners Association
Yes - First Service Residential
Disclaimer
The information displayed on this page is confidential, proprietary, and copyrighted information of Heartland Multiple Listing Service, Inc. (“Heartland MLS”). Copyright 2026, Heartland Multiple Listing Service, Inc. Heartland MLS, Elite Realty and Agent Jo do not make any warranty or representation concerning the timeliness or accuracy of the information displayed herein. In consideration for the receipt of the information on this page, the recipient agrees to use the information solely for the private non-commercial purpose of identifying a property in which the recipient has a good faith interest in acquiring.
The data relating to real estate displayed on this website comes in part from the Heartland Multiple Listing Service database compilation. The properties displayed on this website may not be all of the properties in the Heartland MLS database compilation, or all of the properties listed with other brokers participating in the Heartland MLS IDX program. Detailed information about the properties displayed on this website includes the name of the listing company.
Information is deemed reliable but is not guaranteed.

Copyright © 2026 ELITE Realty.