3117 Southwest Arbor Tree Drive, Lee's Summit, MO 64082

     
  • 5Beds
  •   
  • 3 Baths
  •  
  • 0½ Baths
  •  
  • 2,530Sq Ft
Mortgage Calculator

$559,000
 est. $2,625/mo

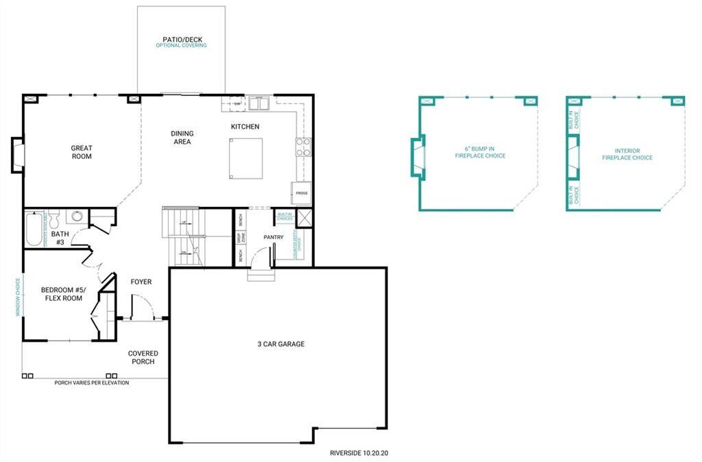
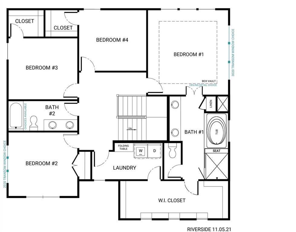
Awesome treed private lot. A dream kitchen with soft-close cabinetry, oversized island and spacious walk-in pantry will satisfy all of your entertaining and creative needs. A massive built-in drop zone makes shedding and storage of gear a breeze. The great room features built-ins on both sides of a stone fireplace and BIG energy efficient windows looking out over the irrigated yard, while the covered patio provides year-round lounging, protection and weather-proof grilling! The private crowned-vault owners suite joins a gorgeous bath with spa-like tiled shower, separate jetted tub and a double vanity so large you'll never want for extra space. Connecting the owners suite to the central laundry is an amazingly large closet with so much space that you'll have good reason to expand your wardrobe! The 2nd floor continues to amaze with a generously sized 2nd, 3rd, and 4th bedrooms. On the main level is a 3rd full bath and 5th bedroom, but you can choose to get creative and use it as an office/study, a playroom, a sitting room, or even a formal or family holiday dining room. With beautiful finishes and fixtures throughout. The amenities of this outstanding family-friendly community include a huge community pool, clubhouse, playground, fishing pond, and trash and recycling too. Hawthorn Ridge provides immediate access to Hawthorn Hills Elementary and LS West High School just outside our entrance and is just a few minutes from Summit Lakes Middle School. Retail, services, grocery, fuel, hiking, finishing, golfing and MORE are literally just moments to minutes away.

Directions
South on Ward Rd to Hook Road, right to Arbor Creek Dr and then left on Arbor Tree Drive to home on left.
Subdivision
Hawthorn Ridge
City
Lee's Summit
County
Jackson
Property Type
Residential / Single Family Residence
Listing Updated
Dec 05, 2025 at 7:12pm
MLS Number
2588196
Property Tax
$6,309
Home Owners Association
Yes - Hawthorn Ridge Homeowners Association
Disclaimer
The information displayed on this page is confidential, proprietary, and copyrighted information of Heartland Multiple Listing Service, Inc. (“Heartland MLS”). Copyright 2025, Heartland Multiple Listing Service, Inc. Heartland MLS, Elite Realty and Agent Jo do not make any warranty or representation concerning the timeliness or accuracy of the information displayed herein. In consideration for the receipt of the information on this page, the recipient agrees to use the information solely for the private non-commercial purpose of identifying a property in which the recipient has a good faith interest in acquiring.
The data relating to real estate displayed on this website comes in part from the Heartland Multiple Listing Service database compilation. The properties displayed on this website may not be all of the properties in the Heartland MLS database compilation, or all of the properties listed with other brokers participating in the Heartland MLS IDX program. Detailed information about the properties displayed on this website includes the name of the listing company.
Information is deemed reliable but is not guaranteed.

Copyright © 2025 ELITE Realty.