5650 Southeast W Highway, Lathrop, MO 64465

     
  • 3Beds
  •   
  • 3 Baths
  •  
  • 1½ Bath
  •  
  • 2,860Sq Ft
Mortgage Calculator

$750,000
 est. $3,106/mo

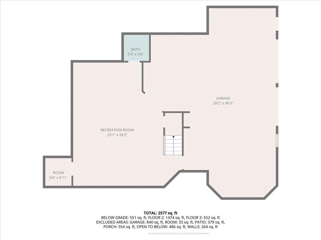
Discover your dream oasis in this breathtaking 3-bedroom, 3.5-bath story-and-a-half home, perfectly nestled on 20 rolling acres of picturesque landscape. This well-maintained retreat includes a master bedroom conveniently located on the main level, offering both comfort and privacy. The inviting open floor plan flows seamlessly, making it ideal for hosting gatherings and creating lasting memories. Venture to the finished basement, a versatile space perfect for a vibrant game room or additional entertaining area, tailored to your lifestyle. Step outside to your expansive porch, where you can unwind with a cup of coffee or enjoy sunset views while rocking in your chairs. The property also features a massive utility building, a shed, and a covered structure, providing ample room for all your equipment and hobbies. With its perfect blend of tranquility and accessibility, this unique gem is just minutes from the city and offers easy highway access. Don’t miss your chance to own this exceptional property—where your dream lifestyle awaits!

Directions
Take 116th till w home has a gated driveway.
Subdivision
Other
City
Lathrop
County
Clinton
Property Type
Residential / Single Family Residence
Listing Updated
Jan 17, 2026 at 12:01pm
MLS Number
2584381
Property Tax
$3,483
Home Owners Association
No
Disclaimer
The information displayed on this page is confidential, proprietary, and copyrighted information of Heartland Multiple Listing Service, Inc. (“Heartland MLS”). Copyright 2026, Heartland Multiple Listing Service, Inc. Heartland MLS, Elite Realty and Agent Jo do not make any warranty or representation concerning the timeliness or accuracy of the information displayed herein. In consideration for the receipt of the information on this page, the recipient agrees to use the information solely for the private non-commercial purpose of identifying a property in which the recipient has a good faith interest in acquiring.
The data relating to real estate displayed on this website comes in part from the Heartland Multiple Listing Service database compilation. The properties displayed on this website may not be all of the properties in the Heartland MLS database compilation, or all of the properties listed with other brokers participating in the Heartland MLS IDX program. Detailed information about the properties displayed on this website includes the name of the listing company.
Information is deemed reliable but is not guaranteed.

Copyright © 2026 ELITE Realty.