3160 W Arrow Street, Marshall, MO 65340

Mortgage Calculator

$375,000
 est. $1,598/mo

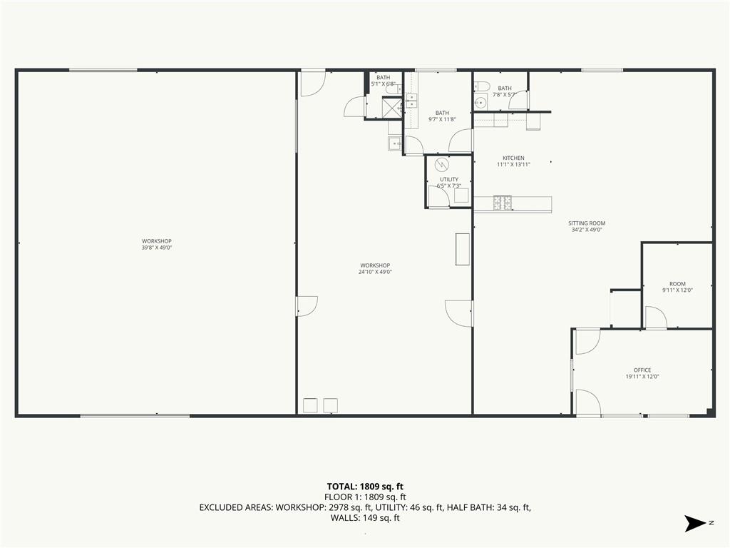
This Commercial Property offers a versatile floorplan for a wide range of business uses. Designed for flexibility, this space accommodates both office and warehouse needs with built in living space that could easily be removed if a buildout is desired. The 5000 square foot layout consists of approximately 1800 square feet of combined office and living space with the 3000 square feet of warehouse space with two overhead doors. Sited on a spacious 1.3 Acre lot that offers several RV connections for additional income. Location couldn't be better with ease of access on and off of W Arrow St/Hwy 20 and within close proximity to Hwy 65.

Directions
From Hwy 65, West on West Arrow.
Subdivision
Other
City
Marshall
County
Saline, MO
Property Type
Business Opportunity / Business
Listing Updated
Jan 06, 2026 at 9:01am
MLS Number
2579459
Property Tax
$2,281
Zoning
$Com
Disclaimer
The information displayed on this page is confidential, proprietary, and copyrighted information of Heartland Multiple Listing Service, Inc. (“Heartland MLS”). Copyright 2026, Heartland Multiple Listing Service, Inc. Heartland MLS, Elite Realty and Agent Jo do not make any warranty or representation concerning the timeliness or accuracy of the information displayed herein. In consideration for the receipt of the information on this page, the recipient agrees to use the information solely for the private non-commercial purpose of identifying a property in which the recipient has a good faith interest in acquiring.
The data relating to real estate displayed on this website comes in part from the Heartland Multiple Listing Service database compilation. The properties displayed on this website may not be all of the properties in the Heartland MLS database compilation, or all of the properties listed with other brokers participating in the Heartland MLS IDX program. Detailed information about the properties displayed on this website includes the name of the listing company.
Information is deemed reliable but is not guaranteed.

Copyright © 2026 ELITE Realty.