15806 Northeast 176th Street, Holt, MO 64048

     
  • 4Beds
  •   
  • 3 Baths
  •  
  • 0½ Baths
  •  
  • 3,354Sq Ft
Mortgage Calculator

$575,000
 est. $2,455/mo

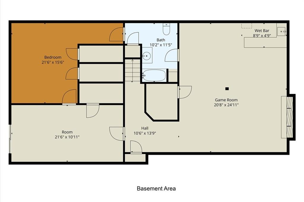
Ranch-style home on 12.33 acres +/- in Holt, MO, located in the Kearney School District, offering peaceful country living with room to grow. Enjoy main-level living with an eat-in kitchen, spacious living room, and three bedrooms on the main level, including the primary suite. The basement features a fireplace, family room, and two bedroom spaces with the option to combine them into one large conforming fourth bedroom, providing flexibility for future use. Outbuildings include a 60x40 machine shed, a 60x40 barn with stalls, and a 1+ acre horse paddock, ideal for running your animals or hobby farming. Major upgrades include remodeled bathroom, new roof, new driveway parking pad, and a high-efficiency heat pump system for very reasonable heating and cooling costs. A rare acreage opportunity with functional improvements and versatile space.

Directions
N on I-35 to Hwy-92. E on Hwy-92 to Hwy-33. N on Hwy-33 to 184th St. W on 184th St. to Nation Rd. S on Nation Rd. to 176th St. E on 176th St. to property on left.
Subdivision
Other
City
Holt
County
Clay
Property Type
Residential / Single Family Residence
Listing Updated
Dec 15, 2025 at 1:12am
MLS Number
2575534
Property Tax
$3,550
Home Owners Association
No
Disclaimer
The information displayed on this page is confidential, proprietary, and copyrighted information of Heartland Multiple Listing Service, Inc. (“Heartland MLS”). Copyright 2025, Heartland Multiple Listing Service, Inc. Heartland MLS, Elite Realty and Agent Jo do not make any warranty or representation concerning the timeliness or accuracy of the information displayed herein. In consideration for the receipt of the information on this page, the recipient agrees to use the information solely for the private non-commercial purpose of identifying a property in which the recipient has a good faith interest in acquiring.
The data relating to real estate displayed on this website comes in part from the Heartland Multiple Listing Service database compilation. The properties displayed on this website may not be all of the properties in the Heartland MLS database compilation, or all of the properties listed with other brokers participating in the Heartland MLS IDX program. Detailed information about the properties displayed on this website includes the name of the listing company.
Information is deemed reliable but is not guaranteed.

Copyright © 2025 ELITE Realty.