519 Southeast 4th Street Terrace, Lee's Summit, MO 64063

     
  • 3Beds
  •   
  • 1 Bath
  •  
  • 1½ Bath
  •  
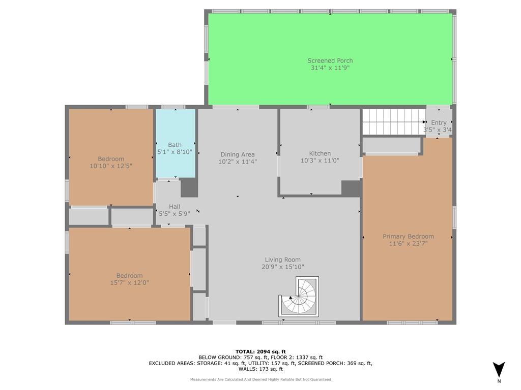
  • 2,200Sq Ft
Mortgage Calculator

$249,900
 est. $1,188/mo

Freshly Remodeled Ranch in Lee’s Summit! This 3-bedroom, 1.5-bath beauty shines with refinished hardwood floors, a stylishly updated kitchen with painted cabinets and granite countertops, and a fully remodeled main bath. The finished basement is an entertainer’s dream—complete with new vinyl plank flooring, a half bath, and a wet bar ready for game days or gatherings. Outside, enjoy a shady treed lot in one of Lee’s Summit’s quiet, established neighborhoods. Move-in ready, full of charm, and waiting for you!

Directions
291 to 5th Street, West to Independence Ave, South to 4th Street Terr, West onto 4th Street Terr to home
Subdivision
Morningside Acres
City
Lee's Summit
County
Jackson
Property Type
Residential / Single Family Residence
Listing Updated
Feb 17, 2026 at 3:02pm
MLS Number
2574868
Property Tax
$2,988
Home Owners Association
No
Disclaimer
The information displayed on this page is confidential, proprietary, and copyrighted information of Heartland Multiple Listing Service, Inc. (“Heartland MLS”). Copyright 2026, Heartland Multiple Listing Service, Inc. Heartland MLS, Elite Realty and Agent Jo do not make any warranty or representation concerning the timeliness or accuracy of the information displayed herein. In consideration for the receipt of the information on this page, the recipient agrees to use the information solely for the private non-commercial purpose of identifying a property in which the recipient has a good faith interest in acquiring.
The data relating to real estate displayed on this website comes in part from the Heartland Multiple Listing Service database compilation. The properties displayed on this website may not be all of the properties in the Heartland MLS database compilation, or all of the properties listed with other brokers participating in the Heartland MLS IDX program. Detailed information about the properties displayed on this website includes the name of the listing company.
Information is deemed reliable but is not guaranteed.

Copyright © 2026 ELITE Realty.