8826 Northeast 80th Terrace, Kansas City, MO 64158

     
  • 3Beds
  •   
  • 2 Baths
  •  
  • 1½ Bath
  •  
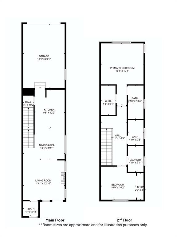
  • 1,332Sq Ft
Mortgage Calculator

$345,000
 est. $1,561/mo

PRICE ADJUSTMENT & HUGE BUYER INCENTIVE - Seller will pay all of your HOA fees for 1 year!! That's a savings of $5570 for your first year! This upscale maintenance provided townhome is priced under $350,000! Located in Shoal Creek Valley-The Village you'll have access to wonderful amenities within walking distance. This includes a private use park - Village Meadow Park and Water Park at the Park House that includes two pools, waterslides, lazy river, park pavilions and walking trails. AND you'll absolutely love this home! It has been thoughtfully updated with designer touches over the last 3 years; new white kitchen cabinets, quartz countertops, luxury vinyl flooring, designer stair carpet, new lighting and more….. luxury style throughout! This homeowner has made efficient use of every inch of space in the home. This is a true 3 bedroom home with 2 bedrooms on the second floor and the third bedroom on the lower level includes an egress window & large closet. The laundry room on the second floor makes doing laundry convenient. This location is great with easy access to 152 on the west side of Liberty, shopping and restaurants, KCI, and more!

Directions
From 152 turn south on N. Flintlock Rd. Turn RIGHT onto NE 80th St. Turn RIGHT onto N. Laurel. Turn LEFT onto NE 80th Terrace. Home is on the right. or 152 turn south on N Booth Avenue to round about and take third exit onto N 82nd Terrace east to N Farley, turn right on N Farley then left onto NE 80th Terrace to home on your left.
Subdivision
Shoal Creek Valley The Village
City
Kansas City
County
Clay
Property Type
Residential / Townhouse
Listing Updated
Nov 22, 2025 at 3:11pm
MLS Number
2563120
Property Tax
$3,189
Home Owners Association
Yes
Disclaimer
The information displayed on this page is confidential, proprietary, and copyrighted information of Heartland Multiple Listing Service, Inc. (“Heartland MLS”). Copyright 2025, Heartland Multiple Listing Service, Inc. Heartland MLS, Elite Realty and Agent Jo do not make any warranty or representation concerning the timeliness or accuracy of the information displayed herein. In consideration for the receipt of the information on this page, the recipient agrees to use the information solely for the private non-commercial purpose of identifying a property in which the recipient has a good faith interest in acquiring.
The data relating to real estate displayed on this website comes in part from the Heartland Multiple Listing Service database compilation. The properties displayed on this website may not be all of the properties in the Heartland MLS database compilation, or all of the properties listed with other brokers participating in the Heartland MLS IDX program. Detailed information about the properties displayed on this website includes the name of the listing company.
Information is deemed reliable but is not guaranteed.

Copyright © 2025 ELITE Realty.