505 MO-273 Highway, Platte City, MO 64079

Mortgage Calculator

$235,000
 est. $987/mo

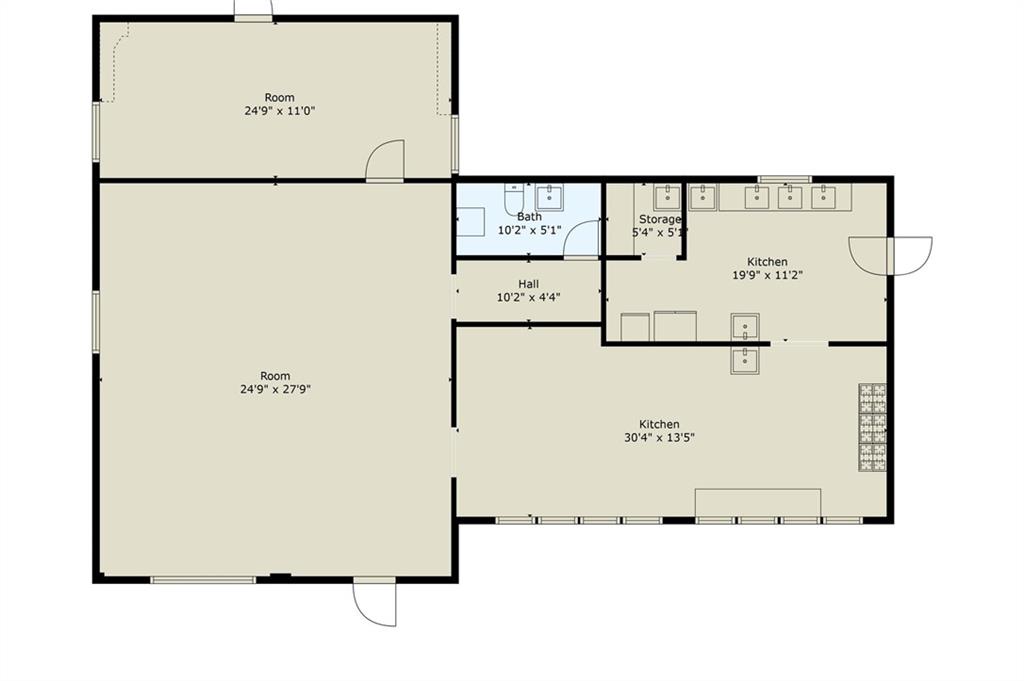
This heavily traveled highway offers you endless possibilities to bring your vision for this Commercial building on 1.4 acres north of Platte City on MO-273 with 2 entrances just minutes from I-29 and HWY 92! The 1,760 square foot building is currently divided into a 25X30 multi-use space with wood flooring and lots of natural light, 25X10 office/storage space, 1/2 bath, 12X30 Commercial Kitchen with 3 gas stoves, industrial hood, 3 compartment stainless steel commercial sink, 2 utility sinks, 2 refrigerators, large pantry. Don't miss the opportunity to bring your vision and make it your own.

Directions
I-29 North take exit 20 towards MO-273 Tracy/Weston exit, property is on the left before the stop light at intersection MO-273 and Branch St (92 HWY)
Subdivision
Other
City
Platte City
County
Platte
Property Type
Business Opportunity / Business
Listing Updated
Dec 17, 2025 at 12:12pm
MLS Number
2557063
Property Tax
$1,256
Zoning
$C
Disclaimer
The information displayed on this page is confidential, proprietary, and copyrighted information of Heartland Multiple Listing Service, Inc. (“Heartland MLS”). Copyright 2025, Heartland Multiple Listing Service, Inc. Heartland MLS, Elite Realty and Agent Jo do not make any warranty or representation concerning the timeliness or accuracy of the information displayed herein. In consideration for the receipt of the information on this page, the recipient agrees to use the information solely for the private non-commercial purpose of identifying a property in which the recipient has a good faith interest in acquiring.
The data relating to real estate displayed on this website comes in part from the Heartland Multiple Listing Service database compilation. The properties displayed on this website may not be all of the properties in the Heartland MLS database compilation, or all of the properties listed with other brokers participating in the Heartland MLS IDX program. Detailed information about the properties displayed on this website includes the name of the listing company.
Information is deemed reliable but is not guaranteed.

Copyright © 2025 ELITE Realty.