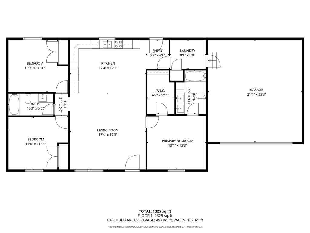
New construction 2025 Bulider will consider assisting with buyers closing cost • Corner lot • 1350 sq ft • Near local schools & Highway 6 • Vaulted ceilings • Back deck entry • 2 pantries • West-facing porch • Privacy-fenced yard Sitting on a 10,200 sq ft corner lot, 300 Maple Ter brings together fresh 2025 construction and a bright, open layout that instantly feels welcoming. The vaulted ceilings and natural light set the tone as you enter the main living area, flowing into a kitchen designed with stainless steel appliances, two pantries, and easy deck access through the mud-area entry. The primary bedroom includes a vaulted ceiling, a generous walk-in closet, and a well-planned bath with double sinks and linen storage. A true laundry room sits off the kitchen, and the sheetrocked, painted 2 car garage pairs with a 4 foot crawl space for helpful storage options. The backyard includes a privacy fence that creates a comfortable outdoor setting, whether relaxing on the back deck or enjoying the mature trees within this established subdivision. The west-facing front porch offers another inviting outdoor space, perfect for easy evenings. Nearby schools and quick access to Highway 6 add convenience for everyday travel. Everything here is brand new and move-in ready.
Copyright © 2025 ELITE Realty.