120 N Main Street, Warrensburg, MO 64093

     
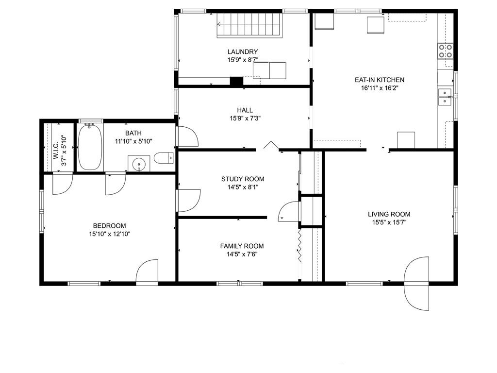
  • 2Beds
  •   
  • 1 Bath
  •  
  • 0½ Baths
  •  
  • 1,408Sq Ft
Mortgage Calculator

$129,900
 est. $555/mo

A charming, cozy cottage nestled in a serene neighborhood, offering a canvas for your personal touch. This two-bedroom, one-bathroom home is a blank slate, ready to be transformed into your dream retreat. With its inviting layout and potential-filled spaces, this property presents an exciting opportunity for those seeking a DIY project. The fenced in back yard provides plenty of shade for numerous activities.

Directions
From the intersection of Maguire and Young go West on Young street to North Main, turn South on Main and continue traveling South on Main and the home will be on the West Side of the road.
Subdivision
None
City
Warrensburg
County
Johnson, MO
Property Type
Residential / Single Family Residence
Listing Updated
Aug 15, 2025 at 10:08am
MLS Number
2511861
Property Tax
$803
Home Owners Association
No
Disclaimer
The information displayed on this page is confidential, proprietary, and copyrighted information of Heartland Multiple Listing Service, Inc. (“Heartland MLS”). Copyright 2026, Heartland Multiple Listing Service, Inc. Heartland MLS, Elite Realty and Agent Jo do not make any warranty or representation concerning the timeliness or accuracy of the information displayed herein. In consideration for the receipt of the information on this page, the recipient agrees to use the information solely for the private non-commercial purpose of identifying a property in which the recipient has a good faith interest in acquiring.
The data relating to real estate displayed on this website comes in part from the Heartland Multiple Listing Service database compilation. The properties displayed on this website may not be all of the properties in the Heartland MLS database compilation, or all of the properties listed with other brokers participating in the Heartland MLS IDX program. Detailed information about the properties displayed on this website includes the name of the listing company.
Information is deemed reliable but is not guaranteed.

Copyright © 2026 ELITE Realty.